| 種別 | 事務所 |
|---|---|
| 所在地 | 奈良市花芝町 |
| 路線 | 近鉄奈良線、JR奈良線 |
| 最寄駅 | 近鉄奈良駅、JR奈良駅 |
| 交通 | ・近鉄奈良駅徒歩約5分 ・JR奈良駅徒歩約17分 |
| 賃料 | 11.55万円 |
| 管理・共益費 | 賃料へ含む |
| 敷金 | 31.5万円 |
| 保証金 | -- |
| 礼金 | 23.1万円 |
| 解約引 | -- |
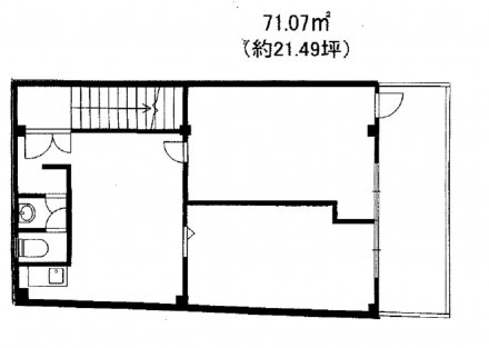
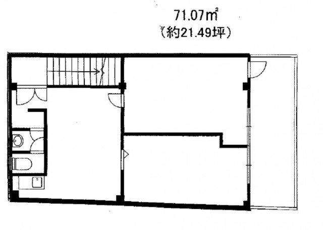
| 間取り | |
| 専有(敷地)面積 | 71.07m2 |
| 築年 | 1981年09月 |
| 建物構造 | 鉄骨造 |
| 業種別 | |
| 駐車場 | |
| 階数 | 3階/3階建 |
| 方向 | 東 |
| 設備 | 都市ガス、上水道、下水道、給湯 |
| 火災保険 | |
| 入居条件 | |
| 引渡 | 即時 |
| 取引形態 | 仲介 |
| 備考 | 自治会費 400円/月 商店街費 2,000円/月(入会金10,000円) ※保証会社加入要 |
※ご成約の際には、仲介手数料とそれにかかる消費税を別途申し受けます。
※表示価格は課税対象のものについては税込み表示となっております。







